Добро пожаловать на http://vipplan.ru

Випплан Воркута - это тысячи проектов домов в нашем каталоге!

Вы всегда сможете найти для себя проект дома вашей мечты! Даже если этого не случилось, мы готовы в любую минуту предложить проект индивидуального дома.

Забыли пароль?
Вы еще не регистрировались?

Перейдите по ссылке ниже на страницу регистрации.

Регистрация...

Внимание!!!

В проектную документацию могут быть внесены изменения любой сложности, в соответствии в Вашими пожеланиями!

Полезные статьи

Мероприятия по получению разрешения на строительство в Воркуте

Хотите построить дом в Воркуте? Не знаете с чего начать? Для начала, нужно заказать проект, а после получить разрешение на строительство. ...

Купить готовый проект дома или заказать индивидуальный?

Перед началом строительства дома возникает необходимость в проекте дома и тут встает вопрос: Купить готовый проект дома или заказать индивидуальный на заказ? Каждый из вариантов по своему хорош и имеет как свои плюсы так и минусы...

Проекты домов и коттеджей > Каталог проектов домов > Проект индивидуального одноэтажного жилого дома с мансардой Vg1508

Проект индивидуального одноэтажного жилого дома с мансардой Vg1508

Проект индивидуального одноэтажного  жилого дома с мансардой
Зарегистрируйтесь

Проект № Vg1508


Техническое описание
Общая площадь: 476.9 м2
Жилая площадь: 154.35 м2
Высота здания: 11.14 м
Размеры дома: 27.22м×38.12м
Кол-во комнат: 6
Цокольный этаж: нет
Гараж: есть
Мансарда: есть

Kонструкция
Фундамент: Ленточный
Перекрытия: Сборные ж/б плиты
Материал стен: Забутовочный кирпич

Архитектурный раздел
АР+КР - 108 000 (Со скидкой 20%)
Проект индивидуального одноэтажного жилого дома с мансардой с размерами здания 27,22 x 38,12 м. Наружная отделка здания – фасадная штукатурка. Фундамент – ленточный монолитный ( под несущими стенами). Наружные стены – из забутовочного кирпича, с утеплением минеральной ватой и отделкой фасадной штукатуркой. Внутренние стены - из забутовочного кирпича. Перегородки – из забутовочного кирпича. Пол первого этажа - пол по грунту. Межэтажное перекрытие- сборные ж/б плиты. (по т.з) Крыша многоскатная. Кровля –битумная черепица. Окна — металлопластиковые
Генплан застройки участка / Паспорт проекта 7000 руб / 10000 руб
Инженерный раздел (полный) 238500 руб
Смета на строительство 119250 руб
Теплотехнический расчет материалов стен Бесплатно
Стоимость проекта со незначительнми изменениями 123050 руб
Стоимость проекта со средними изменениями* 158900 руб
Стоимость проекта со значительными изменениями** 168400 руб

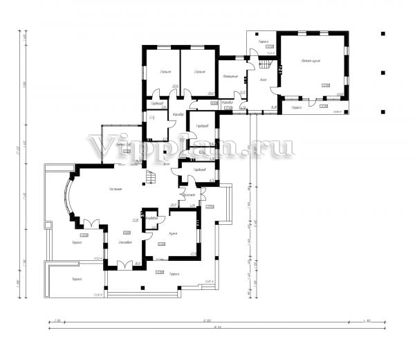
План первого этажа


Прихожая — 4,94 м2
Холл — 28,13 м2
Гостиная — 53,30
Столовая — 18,33 м2
Зимний сад — 19,08 м2
Кухня — 27,14 м2
Кладовая — 2,67 м2
Гардероб — 8,74 м2
С/у — 4,36 м2
Гардероб — 11,54 м2
С/у — 8,21 м2
Коридор — 11,17 м2
Гардероб — 2,64 м2
Спальня — 20,04 м2
Спальня — 20,67 м2
Помещение — 13,75 м2
Коридор — 6,78 м2
Холл — 16,85 м2
Летняя кухня — 49,68 м2
Терраса — 12 м2

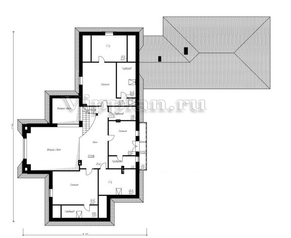
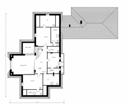
План мансардного этажа


Холл — 29,42 м2
С/у — 20,13 м2
Спальня — 34,20 м2
Гардероб — 14,35 м2
Спальня — 19,99 м2
Гардероб — 7,90 м2
Гардероб — 7,03 м2
Спальня — 33,32 м2
С/у — 20,31 м2
Гардероб — 9,98 м2
Проект индивидуального одноэтажного  жилого дома с мансардой Проект индивидуального одноэтажного  жилого дома с мансардой Проект индивидуального одноэтажного  жилого дома с мансардой Проект индивидуального одноэтажного  жилого дома с мансардой

Модификации проектов

Внесение изменений и привязка к участку строительства

В любой из проектов от компании VIPplan - Воркута по вашему желанию могут быть внесены изменения в материалы стен, материалы наружной отделки дома, а также будет произведена адаптация проекта под конкретный регион строительства (с учетом грунтов региона, геологических особенностей вашего участка и местных климатических условий) - БЕСПЛАТНО !!! (кроме проектов со скидкой и проектов наших партнеров).

Любой из проектов, размещенных на сайте vorkuta.vipplan.ru мы можем выполнить из требуемых вам строительных материалов: ячеистый бетон (газобетон, пеноблок), керамоблок, кирпич, шлакоблок, бетонный блок, дерево (брус, клееный брус), каркасная технология (деревянный каркас, металлокаркас (ЛСТК)).

Фасад дома и его наружную отделку так же возможно выполнить с применением различных облицовочных материалов: структурной штукатурки, (с утеплителем и без), сайдингом (пластиковый или металлосайдинг), фиброплитами, кирпича.

 
6 Избранные
проекты

Доставка проектов по России: Москва (Московская область), Санкт-Петербург (Ленинградская область), Краснодар, Ростов-на-Дону, Ставрополь, Сочи, Волгоград, Новосибирск, Белгород, Брянск, Воронеж, Саратов, Хабаровск, Астрахань, Нальчик, Владикавказ, Екатеринбург, Тюмень, Самара, Нижний Новгород, Казань, Пермь, Уфа, Челябинск, Красноярск, Ханты-Мансийск, Иркутск, Курган, Оренбург, Омск, Томск, Барнаул, Новокузнецк, Кемерово, Абакан, Чита, Якутск, Южно-Сахалинск, Петропавловск-Камчатский и страны ближнего зарубежья: Белоруссия, Украина, Казахстан